. Logement 4 1/2 Neuf à Louer , Mai 2026 | 3223170 | Appartogo
1,450$
Fair price
Posted date: 2 days ago

Logement 4 1/2 Neuf à Louer , Mai 2026

Rivière-Verte | Bas-Saint-Laurent
Apartment for rent, 2 Bedrooms

Services

Parking
Pets allowed

Description

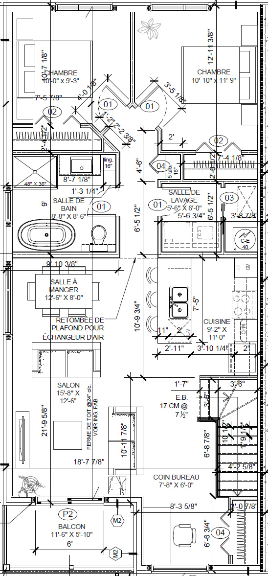
Immeuble neuf de 4 logements de 4.5 pièces de style condo disponible pour mai 2026 (possibilité pour avril) à 1450 $/mois non-chauffé, non-éclairé, non-fumeur. Situé dans le quartier du Domaine du Millénaire à Saint-Antonin, secteur Rivière Verte, tranquille et près de plusieurs services et entreprises. Les logements au rez-de-chaussée ont des planchers chauffants, un garde-manger « walk-in » dans la cuisine. Les logements au 2e étages ont un espace supplémentaire pouvant servir de bureau et le chauffage est avec des plaintes électriques. Les éléments suivants sont présents dans tous les logements : Aspirateur central Thermopompe Échangeur d'air Bain indépendant Douche en verre indépendante Salle de lavage indépendante de la salle de bain Îlot de cuisine Rangement ("locker") extérieur Prise extérieur pour brancher une auto électrique Fenêtres homologuées Énergie Star 2 stationnements extérieurs Logements non-fumeurs Animaux interdit à l'exception de 1 chat avec obligation de garder le logement propre. Mur en béton mitoyen pour une meilleure insonorisation.

Contact the owner

For the details on the accommodation as well as the contact details of the owner, you must go to the original ad of the apartment.

See the ad Source: LogisQuebec

Map

29 rue des Bolets, Rivière-Verte, Rivière-Verte, Bas-Saint-Laurent, G0L 2J0