350,000$
Juste prix
Publié: Il y a 3 jours

Terrain

Mercier-Hochelaga-Maisonneuve | Montréal
Terrain à vendre
Superficie: 2,584 pi²

Description

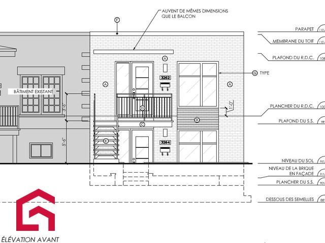
Terrain situé dans Mercier, situé près du métro Honoré-Beaugrand, des services et des transports en commun. Permis de la ville pour la construction d'yun bâtiment 1 étage, 2 logements. Plan fourni à titre informatif seulement. L'acheteur devra s'assurer de la conformité de la construction à toute autre réglementation ou règle de droit applicable.

Contacter le propriétaire

Pour avoir tous les détails concernant le logement ainsi que les coordonnées du propriétaire, vous devez aller sur l’annonce d’origine de l’appartement.

Voir l'annonce Source: LesPAC

Carte

3266 Rue St-Donat, Mercier-Hochelaga-Maisonneuve, Mercier-Hochelaga-Maisonneuve, Ile de Montréal, H1L 1H4