2,400$
Publié: Il y a 3 jours

Le Kalm - 2 chambres au dernier étage - Occ. immédiate - appartement / Condo / logement à louer

Candiac | Montérégie
Appartement à louer, 4 1/2, 2 Chambres

Services

Électricité
Eau chaude
Stationnement
Animaux acceptés
Air conditionné

Description

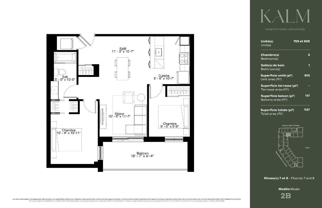
Le Kalm --- Occupation immédiate, à un pas de la gare de Candiac - Condo / appartement neuf 2 chambres (4 1/2) à louer. 175 avenue des Chênes, Candiac. Pour un temps limité, obtenez jusqu'à 7 000$* de rabais ! *Certaines conditions s'appliquent. Détails au bureau de location. Unité 805 - Unité au dernier étage de 810 pi2 offrant 2 chambres séparées et un grand balcon de 117 pi2 à 2 400$ par mois. Disponible pour occupation immédiate. Le calme règne sur cet emplacement exceptionnel entouré de verdure, au sein d'une ville réputée pour son harmonie avec son environnement. Le Kalm vous propose des unités locatives spacieuses de deux et trois chambres. Profitez de notre formule de location tout inclus comprenant : Cinq électroménagers de qualité Eau chaude et électricité Internet Air climatisé central Luminaires Stationnement intérieur Espace de rangement Habiter Kalm, c'est aussi profiter d'espaces communs hors pair : Hall d'entrée grandiose aux accents d'hôtel boutique Lounge convivial Salle d'entraînement lumineuse et équipée Grande terrasse au deuxième étage entièrement aménagée avec piscine Espace co-working Cour intérieure avec passages piétonniers et zones détente Candiac s'illustre au sein des municipalités du Québec où il fait bon vivre. Les environs de la gare Candiac, à un pas du projet, forment un nouveau quartier TOD (transit-oriented development) qui encourage la mobilité active et promet une qualité de vie supérieure. Inscrivez-vous sur le site internet pour recevoir des informations sur ce projet https://lekalmcandiac.ca Bureau de location Kalm et unité témoin :  175, avenue des Chênes, Suite 101 Candiac, QC  J5R 0W8 Lundi : Fermé Mardi : 12h à 18h Mercredi : Sur rendez-vous Jeudi : 12h à 18h Vendredi : Sur rendez-vous Samedi et dimanche : 12h à 17h  Contactez-nous pour planifier une visite : (450) 231-3132 Le Kalm — Immediate Occupancy, Steps from Candiac Train Station. Brand-new 2-bedroom condo/apartment, for rent. 175 Avenue des Chênes, Candiac. For a limited time, get up to $7,000* off your lease! *Certain conditions apply. Details at the rental office. Unit 805 - 810 sq. ft. unit on the top floor with 2 separate bedrooms and a vast 117 sq. ft. balcony at $2,400 per month. Available for immediate occupancy. Serenity reigns at this exceptional location surrounded by greenery, in a city known for its harmony with nature. Le Kalm offers spacious two- and three-bedroom rental units. Enjoy our all-inclusive rental package featuring: Five quality appliances Hot water and electricity included Internet Central air conditioning Lighting fixtures Interior parking Storage space Living at Kalm also means access to outstanding common areas: Grand lobby with its beautiful boutique hotel-style design Comfortable lounge Bright and fully-equipped fitness room Expansive and furnished second-floor terrace with swimming pool Coworking space Interior courtyard featuring pedestrian walkways and lounge areas Candiac stands out as one of Quebec’s most desirable places to live. The area surrounding the Candiac train station—just steps from the project—is part of a new TOD (Transit-Oriented Development) neighborhood that promotes active mobility and promises a superior quality of life. Register now on website to receive information about the project. https://lekalmcandiac.ca Kalm Rental Office and Model Unit: 175, Des Chênes Avenue, Suite 101 Candiac, QC  J5R 0W8 Monday: Closed Tuesday: 12pm to 6pm Wednesday: By appointment Thursday: 12pm to 6pm Friday: By appointment Saturday and Sunday: 12pm to 5pm Contact to schedule a visit: (450) 231-3132

Contacter le propriétaire

Pour avoir tous les détails concernant le logement ainsi que les coordonnées du propriétaire, vous devez aller sur l’annonce d’origine de l’appartement.

Voir l'annonce Source: LesPAC

Carte

175 Avenue des Chênes, Candiac, Candiac, Montérégie, J5R 0B4