1,150$
Super prix
Publié: Il y a 3 jours

Logement Neuf (4½) Dans Un Triplex

Fleurimont | Estrie
Appartement à louer, 4 1/2, 2 Chambres

Services

Stationnement

Description

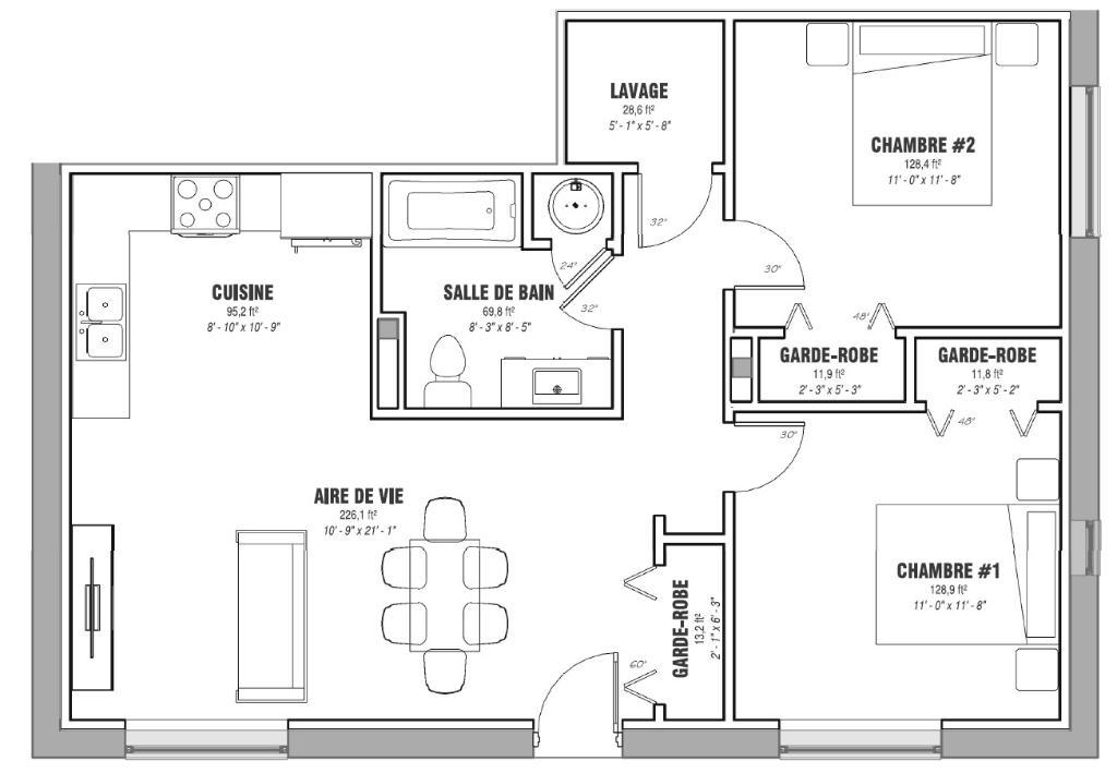
Logement entièrement rénové à neuf et idéalement situé sur la 10e avenue Nord à quelques minutes du Cégep, du CHUS et de l'Hôtel-Dieu. Appartement de 2 chambres et 1 salle de bain avec 1 salle de lavage séparée (électros non-inclus) en plus des autres pièces. Cuisine très fonctionnelle avec garde-manger et système de tri de déchets. Espace pour mettre un îlot si vous en avez un. Deux espaces stationnements inclus. Potager partagé dans la cour arrière. Rangement disponible (ex. vélos) dans le garage de la cour arrière. Épiceries (Maxi, Végétarien, 5e saison, Tigre Géant) à 5 minutes à pied. Très près de plusieurs services et commerces. Station de Bixi à 2 minutes à pied. (Des photos seront rajoutées quand la construction sera plus avancée)

Contacter le propriétaire

Pour avoir tous les détails concernant le logement ainsi que les coordonnées du propriétaire, vous devez aller sur l’annonce d’origine de l’appartement.

Voir l'annonce Source: LesPAC

Carte

84 10e Avenue Nord, Fleurimont, Fleurimont, Estrie, J1G 1R5